Каталог товаров

Бассейновая установка с пластинчатым рекуператором и ЕС-двигателем RWN-RP-ЕС-Aqua
Бесплатный проект

Описание товара
Характеристики моделей
Купить
Руководства

Установка вентиляционная RWN-RP-Aqua предназначена для вентиляции помещений с повышенной влажностью, в частности для помещений бассейнов. В установке предусмотрена камера рециркуляции, которая позволяет поддерживать влажность в помещении на нужном уровне. Подбор производительности установки должен осуществляться таким образом, чтобы в летний период уличный воздух мог удалять влагоизбытки в достаточном количестве, то есть что-бы влажность в помещении поддерживалась на должном уровне. В среднем, влажность в помещениях бассейнов принимается на уровне 60%. При этом температура воздуха в помещении должна быть на пару градусов выше температуры воды в бассейне, чтобы уменьшить интенсивность испарения с зеркала воды.

Корпус установки каркасно-панельный. Панели выполнены из оцинкованной стали и покрыты порошковой краской. Внутренние перегородки также покрыты порошковой краской. Панели в исполнении Vertical имеют толщину 50 мм. Панели заполнены слоем теплошумоизоляции на основе негорючей минеральной ваты.

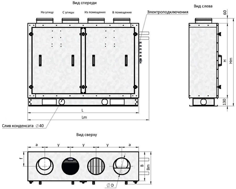
Габаритные размеры установок 

Габаритные размеры RWN-RP-800 (мм)

RWN-RP-ЕС-Vertical-Aqua_габарит 800.jpg

Типоразмер

L

B

H

a

y

f

D

Lm

Bm

Hm

Масса, кг

800

1335

375

904

205

310

188

Ø 200

1470

415

1094

105

Габаритные размеры RWN-RP-1000… RWN-RP-1600 (мм)

RWN-RP-ЕС-Vertical-Aqua_габарит 1000-1600.jpg

Типоразмер

B

H

a

y

f

D1хD2

Lm

Bm

Hm

Масса, кг

1000

723

1000

194

290

361

400x200

1260

783

1130

152

1200

723

1000

194

290

361

400x200

1260

783

1130

153

1600

723

1000

194

290

361

400x200

1260

783

1130

155

Габаритные размеры RWN-RP-1800… RWN-RP-3500 (мм)

RWN-RP-ЕС-Vertical-Aqua_габарит 1800-3500.jpg

Типоразмер

B

H

a

y

f

D1хD2

Lm

Bm

Hm

Масса, кг

1800

760

1350

240

373

380

500x300

1600

860

1480

215

2000

760

1350

240

373

380

500x300

1600

860

1480

215

2200

760

1350

240

373

380

600x300

1600

860

1480

217

2500

800

1350

247

386

400

600x300

1650

900

1480

245

2700

900

1350

272

436

450

600x350

1850

1000

1480

300

3000

900

1400

272

436

450

600x350

1850

1000

1530

312

3500

900

1400

272

436

450

600x350

1850

1000

1530

316

Технические характеристики установок

Наименование

Расход воздуха, м3

Площадь

помещения, м2

Площадь зеркала воды, м2

Напряжение, В

Вентиляторы

Уровень шума Lp,

дБ(A)

Мощность,

кВт

Ток, А

RWN-RP-800(50m)-ЕС-W-Vertical(N)-Aqua

800

40

16

1~220

0,46

3,3

43,0

RWN-RP-1000(50m)-ЕС-W-Vertical(N)-Aqua

1000

50

20

1~220

0,64

4,8

42,8

RWN-RP-1200(50m)-ЕС-W-Vertical(N)-Aqua

1200

60

24

1~220

0,92

6,6

46,0

RWN-RP-1600(50m)-ЕС-W-Vertical(N)-Aqua

1600

80

32

1~220

0,92

6,6

46,0

RWN-RP-1800(50m)-ЕС-W-Vertical(N)-Aqua

1800

90

36

1~220

0,98

4,1

42,5

RWN-RP-2000(50m)-ЕС-W-Vertical(N)-Aqua

2000

100

40

1~220

1,18

8,6

42,5

RWN-RP-2200(50m)-ЕС-W-Vertical(N)-Aqua

2200

110

44

1~220

1,40

6,2

45,8

RWN-RP-2500(50m)-ЕС-W-Vertical(N)-Aqua

2500

125

50

1~220

1,40

6,2

45,8

RWN-RP-2700(50m)-ЕС-W-Vertical(N)-Aqua

2700

135

54

1~220

1,40

6,2

45,8

RWN-RP-3000(50m)-ЕС-W-Vertical(N)-Aqua

3 000

150

60

3~380

2,2

3,2

46,7

RWN-RP-3500(50m)-ЕС-W-Vertical(N)-Aqua

3 500

175

70

3~380

2,2

3,2

46,7

Площадь помещения рассчитана из условия обеспечения пятикратного воздухообмена при вы-соте потолков 4 метра. Площадь зеркала воды приведена из расчета разности влагосодержания наружного и внутреннего воздуха Δd = 4,2 гр/кг.

Технические характеристики водяного нагревателя

Наименование

Мощность нагрева, кВт

Расход теплоносителя, м3

Гидравлические потери в теплообменнике, кПа

Рекомендуемый узел регулирования

RWN-RP-800(50m)-ЕС-W-Vertical(N)-Aqua

8

0,4

1,5

DN Light 15, 25-4, 1.6

RWN-RP-1000(50m)-ЕС-W-Vertical(N)-Aqua

10

0,4

0,7

DN Light 15, 25-4, 1.6

RWN-RP-1200(50m)-ЕС-W-Vertical(N)-Aqua

12

0,5

1,0

DN Light 15, 25-4, 1.6

RWN-RP-1600(50m)-ЕС-W-Vertical(N)-Aqua

16

0,7

1,8

DN Light 15, 25-4, 2.5

RWN-RP-1800(50m)-ЕС-W-Vertical(N)-Aqua

18

0,8

1,7

DN Light 20, 25-4, 2.5

RWN-RP-2000(50m)-ЕС-W-Vertical(N)-Aqua

18

0,9

1,9

DN Light 20, 25-4, 2.5

RWN-RP-2200(50m)-ЕС-W-Vertical(N)-Aqua

22

1,0

2,5

DN Light 20, 25-4, 4

RWN-RP-2500(50m)-ЕС-W-Vertical(N)-Aqua

25

1,1

3,7

DN Light 20, 25-4, 4

RWN-RP-2700(50m)-ЕС-W-Vertical(N)-Aqua

27

1,2

3,2

DN Light 20, 25-4, 4

RWN-RP-3000(50m)-ЕС-W-Vertical(N)-Aqua

30

1,3

3,9

DN Light 20, 25-4, 4

RWN-RP-3500(50m)-ЕС-W-Vertical(N)-Aqua

35

1,5

5,4

DN Light 25, 25-6, 4

Номинальный режим рекуператора: с улицы -24°С ; из помещения: +30°С 60%.
Водяной нагреватель рассчитан на нагрев воздуха с 5°С до 35°С при температуре теплоносителя 80/60°С.

Аэродинамические характеристики

RWN-RP-ЕС-Vertical_аэродинамика.jpg

Условное обозначение:

Установка приточно-вытяжная с пластинчатым рекуператором RWN-RP-800(50m)-ЕС-W-Vertical(N)-Aqua

где: RWN-RP - модель установки;
         800 - типоразмер установки;
         50m - толщина изоляции и тип корпуса;
         ЕC - тип электродвигателя;
         W - водяной нагреватель;
         Vertical - постаментное исполнение - патрубки расположены сверху;
         N - тип пульта управления (Z031);
         Aqua - установка для помещений с повышенной влажностью.

Не представленные в наличии модели доступны к поставке под заказ

Оповестить о поступлении

Спасибо за обращение!
Наш менеджер свяжется с вами.
Руководство RWN-RP-ЕС-Aqua.pdf

Всю необходимую информацию также можно получить по телефону «горячей линии»

+ 7 800 200 93 96

или по телефону

+7 800 505 08 67 получить консультацию