Каталог товаров

Вентилятор радиальный ВЦ-14-46 общепромышленного исполнения

Вентиляторы серии ВЦ-14-46 общепромышленного назначения представляют собой радиальные вентиляторы среднего давления с загнутыми вперед лопатками специальной формы с рабочим колесом левого или правого вращения.
СДЕЛАНО В РОВЕН
Описание товара
Характеристики моделей
Купить
Руководства

Описание 

  • Классические радиальные вентиляторы среднего давления
  • Предназначены для общеобменной вентиляции

Конструктив 

  • Корпус в виде улитки из оцинкованной стали
  • Углы поворота корпуса: 0°, 45°, 90°, 135°, 270°, 315°
  • Левое (Л) или правое (Пр) направление вращения рабочего колеса/положение корпуса
  • Тип рабочего колеса «РВ» с загнутыми вперед лопатками
  • Рабочее колесо до 4,0 из оцинкованной стали, от 5,0 из углеродистой стали с покрытием 

Двигатель 

  • Трехфазный асинхронный электродвигатель
  • Степень защиты электродвигателя не ниже IP 54

Условия эксплуатации 

  • Климатическое исполнение по ГОСТ 15150-69: У2 (для эксплуатации под навесом). Допускается эксплуатация в  У1 (на открытом воздухе) при комплектации кожухом электродвигателя или двигателем У1
  • Температура окружающей среды от -45°С до +40°С
  • Общепромышленное (О) исполнение
  • Температура перемещаемой среды от -45°С до +80°С
  • Перемещаемая среда не должна содержать:
- взрывчатые и/или липкие вещества, волокнистые материалы, пыль и другие твердые примеси в концентрации более 100 мг/м3
- пары и газы с агрессивностью к металлам, покрытиям и изоляции выше агрессивности воздуха

Дополнительная комплектация

ВЦ-14-46-О_доп.jpg

1 - Вставка гибкая круглая ВГК-ВР/ВЦ
2 - Вставка гибкая прямоугольная ВГП-ВР/ВЦ
3 - Козырёк защитный Козырек-ВР/ВЦ
4 - Решетка защитная БАСКЕТ-ВР/ВЦ 
5 - Клапан вертикального выброса КВВ-ВР/ВЦ
6 - Кожух ЭД-ВР/ВЦ
7 - Виброизоляторы

* Дополнительные комплектующие в комплект поставки не входят.

Полная информация о вентиляторах ВЦ-14-46 в электронном pdf-каталоге по ссылке во вкладке "Характеристики".

Вентиляторы ВЦ-14-46 специального назначения можно посмотреть в соответствующем разделе.

Файлы
Вентиляторы радиальные ВЦ-14-46.pdf

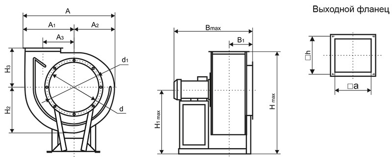
Габаритные и присоединительные размеры

ВР-80-75-О_чертеж.jpg

вентилятора

Габарит

электродвигателя

A*

A1

A2

A3

B max

B1

H** max

H1 max

H2

H3

d

d1

a

h

45°

90°, 270°

135°, 315°

45°

90°

ВЦ-14-46-2,0

56

373

329

349

442

220

153

130

454

160

454

558

500

282

177

172

213

235

140

161

63

373

329

349

442

220

153

130

462

160

462

566

508

290

177

172

213

235

140

161

71

373

329

349

442

220

153

130

475

160

470

574

516

299

177

172

213

235

140

161

80

373

329

349

442

220

153

130

513

160

479

583

583

308

177

172

213

235

140

161

ВЦ-14-46-2,5

71

460

410

424

539

270

189

163

518

177

524

655

591

321

224

203

250

289

175

194

90

460

410

424

539

270

189

163

585

177

543

674

610

340

224

203

250

289

175

194

100

460

410

424

539

270

189

163

607

177

553

684

620

350

224

203

250

289

175

194

112

460

436

424

539

270

189

163

631

177

565

695

631

362

224

203

250

289

175

194

ВЦ-14-46-3,15

71

572

516

520

666

333

240

205

560

202

655

800

726

411

278

244

315

349

220,5

240,5

80

572

516

520

666

333

240

205

605

202

663

809

735

420

278

244

315

349

220,5

240,5

90

572

516

520

666

333

240

205

641

202

663

819

745

430

278

244

315

349

220,5

240,5

100

572

516

520

666

333

240

205

673

202

673

829

755

440

278

244

315

349

220,5

240,5

ВЦ-14-46-4,0

80

721

656

650

834

420

301

260

660

232

780

990

906

486

358

297

400

434

280

300

90

721

656

650

834

420

301

260

691

232

793

1000

916

495

358

297

400

434

280

300

100

721

656

650

834

420

301

260

722

232

803

1010

926

506

358

297

400

434

280

300

112

721

656

650

834

420

301

260

775

232

815

1022

938

518

358

297

400

434

280

300

132

721

656

650

834

420

301

260

764

232

780

1042

958

538

358

297

400

434

280

300

ВЦ-14-46-5,0

100

896

818

798

1037

527

369

324

781

264

986

1127

1128

599

440

359

500

534

350

379

112

896

818

798

1037

527

369

324

799

264

972

1239

1140

612

440

359

500

534

350

379

132

896

818

798

1037

527

369

324

874

264

957

1258

1125

597

440

359

500

534

350

379

160

896

818

798

1037

527

369

324

949

264

984

1330

1230

625

440

359

500

534

350

379

180

896

818

798

1037

527

369

324

1034

264

1005

1306

1207

645

440

359

500

534

350

379

ВЦ-14-46-6,3

132

1133

1028

993

1290

657

476

410

1000

343

1168

1510

1391

734

554

441

630

665

441

470

160

1133

1028

993

1290

657

476

410

1127

343

1201

1538

1420

760

554

441

630

665

441

470

180

1133

1028

993

1290

657

476

410

1201

343

1166

1558

1439

780

554

441

630

665

441

470

200

1133

1028

993

1290

657

476

410

1231

343

1187

1588

1459

800

554

441

630

665

441

470

225

1133

1028

993

1290

657

476

410

1305

343

1265

1614

1484

825

554

441

630

665

441

470

* Размер, зависящий от положения корпуса вентилятора.
** Максимальная высота при различных положениях корпуса вентилятора (0°, 45°, 90°).
Габаритные размеры Bmax и H1max соответственно зависят от устанавливаемого двигателя. Габаритный размер Hmax зависит от положения корпуса и устанавливаемого двигателя.

Оборудование с большей производительностью и в больших типоразмерах представлено в разделах ВРН и ВРВ.

Габаритные и присоединительные размеры основания рамы вентиляторов ВЦ-14-46

ВР-80-75-О_чертеж рама.jpg

вентилятора

Габарит

электродвигателя

А

В

C

D

Е

F

K

L

M

n

ВЦ-14-46-2,0

56-80

365

202

226

-

-

20

90

30

8,5

8

ВЦ-14-46-2,5

71-112

418

292

316

-

-

20

90

30

8,5

8

ВЦ-14-46-3,15

71-100

445

254

278

-

-

20

90

30

9

8

ВЦ-14-46-4,0

80-112

570

290

314

-

-

20

163

30

8,5

8

132

711

399

433

-

-

20

163

30

8,5

8

ВЦ-14-46-5,0

100

730

385

435

10

240

100

240

-

-

6

112

700

385

435

10

240

100

240

-

-

6

132-180

846

430

505

10

283,5

179

283,5

-

-

6

ВЦ-14-46-6,3

132

850

486

546

10

325

100

325

-

-

6

160

850

486

546

10

325

100

325

-

-

6

180-225

1025

495

570

10

410,5

100

410,5

-

-

6

Технические характеристики

Наименование

Габарит электродвигателя

N, кВт

n, об/мин

Ток при 380В, А

Масса max, кг

Виброопора

тип ЕС (А)

Кол-во

Тип

ВЦ-14-46-2,0-О-РВ-0,12/1500/220-380

56

0,12

1310

0,49

13,9

4

20*25(А) М6

ВЦ-14-46-2,0-О-РВ-0,18/1500/220-380

56

0,18

1310

0,67

14,1

4

20*25(А) М6

ВЦ-14-46-2,0-О-РВ-0,25/1500/220-380

63

0,25

1340

0,87

15,5

4

20*25(А) М6

ВЦ-14-46-2,0-О-РВ-1,1/3000/220-380

71

1,1

2840

2,63

24,3

4

20*25(А) М6

ВЦ-14-46-2,0-О-РВ-1,5/3000/220-380

80

1,5

2850

3,46

24,9

4

20*25(А) М6

ВЦ-14-46-2,0-О-РВ-2,2/3000/220-380

80

2,2

2855

4,85

28,9

4

20*25(А) М6

ВЦ-14-46-2,5-О-РВ-0,55/1500/220-380

71

0,55

1390

1,66

22,5

4

20*25(А) М6

ВЦ-14-46-2,5-О-РВ-0,75/1500/220-380

71

0,75

1390

2,11

23,0

4

20*25(А) М6

ВЦ-14-46-2,5-О-РВ-3,0/3000/220-380

90

3,0

2860

6,35

34,0

4

20*25(А) М6

ВЦ-14-46-2,5-О-РВ-4,0/3000/220-380

100

4,0

2880

8,2

43,0

4

20*25(А) М6

ВЦ-14-46-2,5-О-РВ-5,5/3000/220-380

100

5,5

2900

11,1

49,5

4

20*20(А) М6

ВЦ-14-46-2,5-О-РВ-7,5/3000/220-380

112

7,5

2895

14,9

60,8

6

20*25(А) М6

ВЦ-14-46-3,15-О-РВ-0,37/1000/220-380

71

0,37

880

1,39

29,0

4

20*25(А) М6

ВЦ-14-46-3,15-О-РВ-0,55/1000/220-380

71

0,55

880

1,79

30,0

4

20*25(А) М6

ВЦ-14-46-3,15-О-РВ-0,75/1000/220-380

80

0,75

905

2,3

35,0

4

20*25(А) М6

ВЦ-14-46-3,15-О-РВ-1,1/1500/220-380

80

1,1

1390

2,85

34,3

4

20*25(А) М6

ВЦ-14-46-3,15-О-РВ-1,5/1500/220-380

80

1,5

1400

3,72

36,5

4

20*25(А) М6

ВЦ-14-46-3,15-О-РВ-2,2/1500/220-380

90

2,2

1410

5,3

51,5

4

20*20(А) М6

ВЦ-14-46-3,15-О-РВ-3,0/1500/220-380

100

3,0

1410

6,8

65,8

4

20*20(А) М6

ВЦ-14-46-4,0-О-РВ-0,37/750/220-380

80

0,37

675

1,64

44,4

4

20*20(А) М6

ВЦ-14-46-4,0-О-РВ-0,55/750/220-380

80

0,55

680

2,4

45,4

4

20*20(А) М6

ВЦ-14-46-4,0-О-РВ-0,75/750/220-380

90

0,75

680

2,43

50,4

4

20*20(А) М6

ВЦ-14-46-4,0-О-РВ-1,1/750/220-380

90

1,1

680

3,36

51,1

4

20*20(А) М6

ВЦ-14-46-4,0-О-РВ-0,75/1000/220-380

80

0,75

905

2,3

48,3

4

20*20(А) М6

ВЦ-14-46-4,0-О-РВ-1,1/1000/220-380

80

1,1

905

3,2

49,5

4

20*20(А) М6

ВЦ-14-46-4,0-О-РВ-1,5/1000/220-380

90

1,5

920

4,29

54,5

4

20*20(А) М6

ВЦ-14-46-4,0-О-РВ-2,2/1000/220-380

100

2,2

935

5,6

62,5

6

20*25(А) М6

ВЦ-14-46-4,0-О-РВ-3,0/1500/220-380

100

3,0

1410

6,8

53,7

6

20*20(А) М6

ВЦ-14-46-4,0-О-РВ-4,0/1500/220-380

100

4,0

1435

8,8

58,5

6

20*20(А) М6

ВЦ-14-46-4,0-О-РВ-5,5/1500/220-380

112

5,5

1440

11,7

89

6

25*30(А) М6

ВЦ-14-46-4,0-О-РВ-7,5/1500/380-660

132

7,5

1450

15,71

93,5

6

25*30(А) М6

ВЦ-14-46-5,0-О-РВ-1,5/750/220-380

100

1,5

690

4,4

87,7

6

25*30(А) М6

ВЦ-14-46-5,0-О-РВ-2,2/750/220-380

112

2,2

710

6,16

89,2

6

25*30(А) М6

ВЦ-14-46-5,0-О-РВ-3,0/750/220-380

112

3,0

710

8,15

89,7

6

25*30(А) М6

ВЦ-14-46-5,0-О-РВ-4,0/750/380-660

132

4,0

720

10,47

131,2

6

25*20(А) М6

ВЦ-14-46-5,0-О-РВ-4,0/1000/220-380

112

4,0

960

9,75

111

6

25*30(А) М6

ВЦ-14-46-5,0-О-РВ-5,5/1000/380-660

132

5,5

960

12,9

130

6

25*20(А) М6

ВЦ-14-46-5,0-О-РВ-7,5/1000/380-660

132

7,5

970

17,2

147

6

30*30(А) М8

ВЦ-14-46-5,0-О-РВ-11,0/1000/380-660

160

11,0

970

24,5

183

6

30*30(А) М8

ВЦ-14-46-5,0-О-РВ-15,0/1500/380-660

160

15,0

1460

30

200

6

30*30(А) М8

ВЦ-14-46-5,0-О-РВ-18,5/1500/380-660

160

18,5

1470

36,3

218

6

40*40(А) М8

ВЦ-14-46-5,0-О-РВ-22,0/1500/380-660

180

22,0

1470

43,2

243

6

40*40(А) М8

ВЦ-14-46-5,0-О-РВ-30,0/1500/380-660

180

30,0

1470

57,6

249

6

40*40(А) М8

ВЦ-14-46-6,3-О-РВ-5,5/750/380-660

132

5,5

720

13,83

194

6

30*30(А) М8

ВЦ-14-46-6,3-О-РВ-7,5/750/380-660

160

7,5

720

18,17

238

6

25*10(А) М6

ВЦ-14-46-6,3-О-РВ-11,0/750/380-660

160

11,0

730

26

258

6

40*40(А) М8

ВЦ-14-46-6,3-О-РВ-15,0/750/380-660

180

15,0

730

35

288

6

50*50(А) М10

ВЦ-14-46-6,3-О-РВ-11,0/1000/380-660

160

11,0

970

24,5

240

6

25*10(А) М6

ВЦ-14-46-6,3-О-РВ-15,0/1000/380-660

160

15,0

970

31,6

285

6

25*10(А) М6

ВЦ-14-46-6,3-О-РВ-18,5/1000/380-660

180

18,5

980

38,6

226

6

25*10(А) М6

ВЦ-14-46-6,3-О-РВ-22,0/1000/380-660

200

22,0

980

44,7

226

6

25*10(А) М6

ВЦ-14-46-6,3-О-РВ-30,0/1000/380-660

200

30,0

980

60

339

6

50*50(А) М10

ВЦ-14-46-6,3-О-РВ-37,0/1000/380-660

225

37,0

980

71

384

6

50*50(А) М10

Шумовые характеристики

Наименование

Уровень звуковой мощности, дБ в октавных полосах частот, Гц

Общий, дБа

125

250

500

1000

2000

4000

8000

ВЦ-14-46-2,0-О-РВ-0,12/1500/220-380

71

74

68

67

63

55

50

77

ВЦ-14-46-2,0-О-РВ-0,18/1500/220-380

71

74

68

67

63

55

50

77

ВЦ-14-46-2,0-О-РВ-0,25/1500/220-380

71

74

68

67

63

55

50

77

ВЦ-14-46-2,0-О-РВ-1,1/3000/220-380

91

94

88

87

83

75

70

97

ВЦ-14-46-2,0-О-РВ-1,5/3000/220-380

91

94

88

87

83

75

70

97

ВЦ-14-46-2,0-О-РВ-2,2/3000/220-380

91

94

88

87

83

75

70

97

ВЦ-14-46-2,5-О-РВ-0,55/1500/220-380

80

82

77

76

72

63

59

85

ВЦ-14-46-2,5-О-РВ-0,75/1500/220-380

80

82

77

76

72

63

59

85

ВЦ-14-46-2,5-О-РВ-3,0/3000/220-380

98

100

95

94

90

81

77

103

ВЦ-14-46-2,5-О-РВ-4,0/3000/220-380

98

100

95

94

90

81

77

103

ВЦ-14-46-2,5-О-РВ-5,5/3000/220-380

98

100

95

94

90

81

77

103

ВЦ-14-46-2,5-О-РВ-7,5/3000/220-380

98

100

95

94

90

81

77

103

ВЦ-14-46-3,15-О-РВ-0,37/1000/220-380

78

81

75

74

70

62

57

84

ВЦ-14-46-3,15-О-РВ-0,55/1000/220-380

78

81

75

74

70

62

57

84

ВЦ-14-46-3,15-О-РВ-0,75/1000/220-380

78

81

75

74

70

62

57

84

ВЦ-14-46-3,15-О-РВ-1,1/1500/220-380

90

92

87

86

82

73

69

95

ВЦ-14-46-3,15-О-РВ-1,5/1500/220-380

90

92

87

86

82

73

69

95

ВЦ-14-46-3,15-О-РВ-2,2/1500/220-380

90

92

87

86

82

73

69

95

ВЦ-14-46-3,15-О-РВ-3,0/1500/220-380

90

92

87

86

82

73

69

95

ВЦ-14-46-4,0-О-РВ-0,37/750/220-380

79

82

76

75

71

63

58

85

ВЦ-14-46-4,0-О-РВ-0,55/750/220-380

79

82

76

75

71

63

58

85

ВЦ-14-46-4,0-О-РВ-0,75/750/220-380

79

82

76

75

71

63

58

85

ВЦ-14-46-4,0-О-РВ-1,1/750/220-380

79

82

76

75

71

63

58

85

ВЦ-14-46-4,0-О-РВ-0,75/1000/220-380

86

88

83

82

78

69

65

91

ВЦ-14-46-4,0-О-РВ-1,1/1000/220-380

86

88

83

82

78

69

65

91

ВЦ-14-46-4,0-О-РВ-1,5/1000/220-380

86

88

83

82

78

69

65

91

ВЦ-14-46-4,0-О-РВ-2,2/1000/220-380

86

88

83

82

78

69

65

91

ВЦ-14-46-4,0-О-РВ-3,0/1500/220-380

97

100

94

93

89

81

76

103

ВЦ-14-46-4,0-О-РВ-4,0/1500/220-380

97

100

94

93

89

81

76

103

ВЦ-14-46-4,0-О-РВ-5,5/1500/220-380

97

100

94

93

89

81

76

103

ВЦ-14-46-4,0-О-РВ-7,5/1500/380-660

97

100

94

93

89

81

76

103

ВЦ-14-46-5,0-О-РВ-1,5/750/220-380

88

91

85

84

80

72

67

94

ВЦ-14-46-5,0-О-РВ-2,2/750/220-380

88

91

85

84

80

72

67

94

ВЦ-14-46-5,0-О-РВ-3,0/750/220-380

88

91

85

84

80

72

67

94

ВЦ-14-46-5,0-О-РВ-4,0/750/380-660

88

91

85

84

80

72

67

94

ВЦ-14-46-5,0-О-РВ-4,0/1000/220-380

95

97

92

91

87

78

74

100

ВЦ-14-46-5,0-О-РВ-5,5/1000/380-660

95

97

92

91

87

78

74

100

ВЦ-14-46-5,0-О-РВ-7,5/1000/380-660

95

97

92

91

87

78

74

100

ВЦ-14-46-5,0-О-РВ-11,0/1000/380-660

95

97

92

91

87

78

74

100

ВЦ-14-46-5,0-О-РВ-15,0/1500/380-660

106

109

103

102

98

90

85

112

ВЦ-14-46-5,0-О-РВ-18,5/1500/380-660

106

109

103

102

98

90

85

112

ВЦ-14-46-5,0-О-РВ-22,0/1500/380-660

106

109

103

102

98

90

85

112

ВЦ-14-46-5,0-О-РВ-30,0/1500/380-660

106

109

103

102

98

90

85

112

ВЦ-14-46-6,3-О-РВ-5,5/750/380-660

84

87

90

84

84

80

74

71

ВЦ-14-46-6,3-О-РВ-7,5/750/380-660

84

87

90

84

84

80

74

71

ВЦ-14-46-6,3-О-РВ-11,0/750/380-660

84

87

90

84

84

80

74

71

ВЦ-14-46-6,3-О-РВ-15,0/750/380-660

84

87

90

84

84

80

74

71

ВЦ-14-46-6,3-О-РВ-11,0/1000/380-660

92

95

97

92

92

88

82

79

ВЦ-14-46-6,3-О-РВ-15,0/1000/380-660

92

95

97

92

92

88

82

79

ВЦ-14-46-6,3-О-РВ-18,5/1000/380-660

92

95

97

92

92

88

82

79

ВЦ-14-46-6,3-О-РВ-22,0/1000/380-660

92

95

97

92

92

88

82

79

ВЦ-14-46-6,3-О-РВ-30,0/1000/380-660

92

95

97

92

92

88

82

79

ВЦ-14-46-6,3-О-РВ-37,0/1000/380-660

92

95

97

92

92

88

82

79

ВЦ-14-46-О_маркировка.jpg

Электрические схемы подключения вентиляторов в сеть 380 В

ВР-80-75-О, ДУ_элсхема.jpg

* В вентиляторах с номинальным напряжением ∆/Y 380В/660В предусмотрена возможность запуска пониженным напряжением по схеме Y-∆. Для получения более подробной информации по подключению, обратитесь в отдел технической поддержки.


Не представленные в наличии модели доступны к поставке под заказ

Наименование
Единица измерения
Масса, кг
Стоимость
Руководство по эксплуатации ВЦ-14-46.pdf

Всю необходимую информацию также можно получить по телефону «горячей линии»

+ 7 800 200 93 96

или по телефону

+7 800 505 08 67 получить консультацию